2022Äê12ÔÂ27ÈÕ£¬£¬£¬£¬£¬¹úÎñÔºÁª·ÀÁª¿Ø»úÖÆÕÙ¿ªÐÂÎÅÐû²¼»á£¬£¬£¬£¬£¬ÏÈÈÝйڲ¡¶¾Ñ¬È¾ÊµÑé¡°ÒÒÀàÒҹܡ±²½·¥ÓйØÇéÐΡ£¡£¡£¡£¡£¡£¡£»£»£»£»£»£»áÉÏת´ï£¬£¬£¬£¬£¬×èÖ¹12ÔÂ25ÈÕÌì϶þ¼¶ÒÔÉÏÒ½Ôº·¢ÈÈÃÅÕïÁè¼Ý1.6Íò¸ö¡£¡£¡£¡£¡£¡£¡£±¾ÎÄÒÔijҽԺ·¢ÈÈÃÅÕïΪ°¸Àý£¬£¬£¬£¬£¬ÏêϸÐðÊöÁË·¢ÈÈÃÅÕïµÄ½¨ÉèÓëÖÎÀíÒªµã£¬£¬£¬£¬£¬Ö¼ÔÚÌá¸ß×ÛºÏÒ½ÔººÍѬȾ²¡Ò½Ôº¶ÔѬȾ²¡µÄÓ¦¶ÔÄÜÁ¦¡£¡£¡£¡£¡£¡£¡£
Ò¼ ·¢ÈÈÃÅÕï½á¹¹
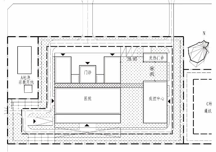
Ò» λÖÃ
Ò½Ôº·¢ÈÈÃÅÕïµÄÉèÖÃÓ¦ÄÉÈëÒ½Ôº×ÜÌ彨ÉèÍýÏ룬£¬£¬£¬£¬ºÏÀí°²ÅŹ¦Ð§½á¹¹¡£¡£¡£¡£¡£¡£¡£¶þ¼¶¼°ÒÔÉÏ×ÛºÏÒ½ÔºÒªÔÚÏà¶Ô×ÔÁ¦µÄÇøÓò¹æ·¶ÉèÖ÷¢ÈÈÃÅÕï¡£¡£¡£¡£¡£¡£¡£·¢ÈÈÃÅÕïÓ¦ÓëÍⲿÁªÏµ±ã½Ý£¬£¬£¬£¬£¬ÉèÓÐÐÑÄ¿µÄ±êʶ£¬£¬£¬£¬£¬¾ß±¸×ÔÁ¦µÄÊÕÖ§¿Ú£¬£¬£¬£¬£¬ÓëͨË×ÃÅ£¨¼±£©ÕïÏà¸ôÀ룬£¬£¬£¬£¬ÓëÆäËûÐÞ½¨¡¢¹«¹²³¡ºÏ¼á³ÖÊʵ±¼ä¾à£¬£¬£¬£¬£¬Æ¾Ö¤ÐÐÒµ¹æ·¶£¬£¬£¬£¬£¬·¢ÈÈÃÅÕïÐèÒªÓëÖܱ߯äËûÐÞ½¨¼á³Ö20Ã×ÒÔÉϵľàÀë¡£¡£¡£¡£¡£¡£¡£
Èçͼ1ËùʾµÄijҽԺ·¢ÈÈÃÅÕïÉè¼Æ£¬£¬£¬£¬£¬ÔÚÓÐÏÞµÄÓõØÃæ»ýÄÚ°²ÅÅÁËÒ½Ôº¡¢¼²¿ØÖÐÐĵÈÐÞ½¨£¬£¬£¬£¬£¬·¢ÈÈÃÅÕï˼Á¿ÆäѬȾÐÔ£¬£¬£¬£¬£¬×ÔÁ¦ÉèÖ㬣¬£¬£¬£¬Î»ÓÚÏ·çÏò£¬£¬£¬£¬£¬Óë¶¼»áõè¾¶Óбã½ÝµÄÁªÏµ£¬£¬£¬£¬£¬ÓëÔºÇøÄÚÒ½ÔººÍ¼²¿ØÖÐÐĵľàÀë¶¼¿ØÖÆÔÚ20Ã×ÒÔÉÏ£¬£¬£¬£¬£¬²¢ÉèÖÃÓÐÒ»¶¨µÄÎïÀí¸ôÀëÉèÊ©£¬£¬£¬£¬£¬Öª×ã¹æ·¶ÒªÇ󡣡£¡£¡£¡£¡£¡£

ͼ1 ·¢ÈÈÃÅÕïÇøÎ»ÍýÏë
¶þ ½á¹¹
01 ¡°ÈýÇøÁ½Í¨µÀ¡±ÔÔò
·¢ÈÈÃÅÕïÆ¾Ö¤¡°ÈýÇøÁ½Í¨µÀ¡±µÄ½á¹¹ÇкÏÒ½Ôº¸Ð¿ØÒªÇ󡣡£¡£¡£¡£¡£¡£¡°ÈýÇø¡±ÊÇÖ¸ÎÛÈ¾Çø¡¢Ç±ÔÚÎÛÈ¾ÇøºÍÇå½àÇø£¬£¬£¬£¬£¬¡°ÈýÇø¡±Äܹ»°ü¹ÜÔÚ×öºÃСÎÒ˽¼Ò·À»¤µÄÇéÐÎÏÂïÔÌÒ½»¤¼ä¡¢Ò½»¼¼äµÄ½»Ö¯Ñ¬È¾£¨Í¼2£©¡£¡£¡£¡£¡£¡£¡£¡°Á½Í¨µÀ¡±ÊÇÖ¸·¢ÈÈÃÅÕïÇøÓòÖÐÍýÏëµÄÒ½ÎñְԱͨµÀºÍ»¼ÕßͨµÀ¡£¡£¡£¡£¡£¡£¡£ÔÚÉè¼ÆÊ±½«Ò½ÎñÖ°Ô±ÊÕÖ§¿ÚºÍͨµÀÉèÖÃÔÚÇå½àÇøÒ»²à£¬£¬£¬£¬£¬»¼ÕßÊÕÖ§¿ÚºÍͨµÀÉèÖÃÔÚÎÛÈ¾ÇøÒ»²à£¬£¬£¬£¬£¬Á½Í¨µÀÉè¼ÆÊ¹ËùÓÐÖ°Ô±Ô˶¯õè¾¶ÇкÏÖÎÀí¹æ·¶£¬£¬£¬£¬£¬½µµÍ½»Ö¯Ñ¬È¾µÄΣº¦£¨Í¼3£©¡£¡£¡£¡£¡£¡£¡£
¢Ù ÎÛÈ¾Çø
ÎÛÈ¾Çø·ÖΪÖ÷Òª¹¦Ð§ÇøºÍ¸¨ÖúÇø£¬£¬£¬£¬£¬Ö÷Òª¹¦Ð§ÇøÓò°üÀ¨ºòÕïÇø¡¢ÕïÊÒ¡¢Áô¹ÛÊÒ¡¢»¤Ê¿Õ¾¡¢ÖÎÁÆÊҵȣ¬£¬£¬£¬£¬¸¨ÖúÇø°üÀ¨Ô¤¼ì·ÖÕïÇø¡¢¹ÒºÅ¡¢ÊÕ·Ñ¡¢Ò©·¿¡¢Ä¥Á·¡¢·ÅÉä¡¢±ê±¾ÊÕÂÞÊÒ¡¢ÎÀÉú¼ä¡¢ÎÛÎï±£½àºÍÒ½ÁÆ·ÏÎïÔÝ´æ¼äµÈ¡£¡£¡£¡£¡£¡£¡£
¢Ú DZÔÚÎÛÈ¾Çø
DZÔÚÎÛÈ¾ÇøÖ÷Òª°üÀ¨ÎÛȾ·À»¤ÓÃÆ·ÍÑжµÄ»º³å¼ä¡¢Ïû¶¾Îï×Ê´¢±¸¿â·¿µÈ¡£¡£¡£¡£¡£¡£¡£
¢ÛÇå½àÇø
Çå½àÇø°üÀ¨Ò½Éú°ì¹«ÊÒ¡¢Öµ°àÊÒ¡¢Çå½à¿â·¿¡¢·À»¤·þÒÂ×ÅÇø¡¢Ò½ÎñÖ°Ô±Ò×·þÊÒ¡¢Ô¡ÊÒ¡¢ÎÀÉú¼äµÈ¡£¡£¡£¡£¡£¡£¡£

ͼ2 ¡°ÈýÇø¡±½á¹¹

ͼ3 ¡°Á½Í¨µÀ¡±½á¹¹
02 Ö÷Òª¿Õ¼äÉè¼ÆÒªµã
¢Ù Ô¤¼ì·ÖÕį̈
Ô¤¼ì·ÖÕį̈ÉèÖÃÓÚ»¼ÕßÈë¿ÚÃÅÌü´¦£¬£¬£¬£¬£¬¿¿½üÈë¿Ú£¬£¬£¬£¬£¬±êʶÐÑÄ¿£¬£¬£¬£¬£¬Äܹ»ÓÐÓÃÖ¸µ¼»¼Õß¾ÙÐÐÐÅÏ¢¹ÒºÅ¡¢ÆÚ´ý¡¢Õï¶Ï¡¢¼ì²éºÍÄ¥Á·¡£¡£¡£¡£¡£¡£¡£
¢Ú ºòÕïÇø
ºòÕïÇøÒ»Ñùƽ³£ÎªÏà¶Ô×ÔÁ¦µÄ¿ª·ÅÇøÓò£¬£¬£¬£¬£¬Ãæ»ýÓ¦´óÓÚ20ƽ·½Ã×£¬£¬£¬£¬£¬Í¸·çÓÅÒ죬£¬£¬£¬£¬ÐëҪʱ¿É¼Ó×°»úе͸·ç×°Öᣡ£¡£¡£¡£¡£¡£Èý¼¶Ò½ÔºÓ¦ÉèÖÿÉÈÝÄɲ»ÉÙÓÚ30È˺òÕïµÄ¿Õ¼ä£¬£¬£¬£¬£¬¶þ¼¶Ò½ÔºÓ¦ÉèÖÿÉÈÝÄɲ»ÉÙÓÚ20È˺òÕïµÄ¿Õ¼ä¡£¡£¡£¡£¡£¡£¡£Í¬Ê±ÔÚ»¼ÕßÈë¿Ú´¦µÄÍⲿ¿Õ¼äÔ¤Áô×ã¹»µÄÃæ»ý´î½¨ÔÝʱ¼äÕïÇø£¬£¬£¬£¬£¬Öª×ãºòÕïµÄÐèÇ󡣡£¡£¡£¡£¡£¡£
¢ÛÕïÊÒ
ÕïÊÒÉèÖÃΪµ¥ÈËÕïÊÒ£¬£¬£¬£¬£¬½ÓÄÉÒ»Ò½Ò»»¼µÄ¾ÍÕïģʽ£¬£¬£¬£¬£¬²¢ÖÁÉÙÉèÓÐ1¼ä±¸ÓÃÕïÊÒ¡£¡£¡£¡£¡£¡£¡£ÕïÊÒÃæ»ý¾¡¿ÉÄÜ¿í³¨£¬£¬£¬£¬£¬Äܹ»°Ú·ÅÒ»ÕÅÕï²é×À¡¢Ò»ÕÅÕï²é´²ÒÔ¼°Á÷¶¯Ë®Ï´ÊÖÉèÊ©£¬£¬£¬£¬£¬²¢×°ÖÃ×ÔÁ¦µç»°¼á³ÖÁªÏµ¡£¡£¡£¡£¡£¡£¡£
¢ÜÁô¹Û²¡·¿
·¢ÈÈÃÅÕïӦƾ֤ҪÇóºÍÏìÓ¦¹æ·¶ÉèÖÃÁô¹Û²¡·¿£¬£¬£¬£¬£¬½¨ÒéÈý¼¶Ò½ÔºÁô¹Û²¡·¿²»ÉÙÓÚ15¼ä£¬£¬£¬£¬£¬¶þ¼¶Ò½ÔºÁô¹Û²¡·¿²»ÉÙÓÚ10¼ä¡£¡£¡£¡£¡£¡£¡£Áô¹Û²¡·¿Ó¦Æ¾Ö¤µ¥È˵¥¼äµÄÒªÇóÊÕÖλ¼Õߣ¬£¬£¬£¬£¬ÉèÓÐ×ÔÁ¦²¡·¿µÄзçϵͳ£¬£¬£¬£¬£¬µ¥¶ÀÉèÖÃÎÀÉú¼ä£¬£¬£¬£¬£¬¿Õµ÷ϵͳÄܹ»°ü¹Ü²¡·¿Äھ߱¸»®¶¨µÄ¸ºÑ¹¡£¡£¡£¡£¡£¡£¡£
²¡·¿´²Í·ÉèÖÃÖÐÐĹ©Ñõ¡¢ÖÐÐÄÎüÒý¡¢Ñ¹Ëõ¿ÕÆø¡¢ºô½Ðϵͳ¡¢¶Ô½²ÏµÍ³µÈÉèÊ©µÄ×°±¸´ø£¬£¬£¬£¬£¬ÉèÖÃÃŽû¡¢ÍøÂç¡¢¼à¿Ø¡¢ÖÐÑë¼à»¤ÏµÍ³ÒÔ¼°ºôÎü»ú¡¢³ý²üÒǵÈÇÀ¾È×°±¸£¬£¬£¬£¬£¬¿ÉÒÔʵÏÖ¶ÔÁô¹Û²¡È˵ÄÔ¶³Ì¼à»¤¡£¡£¡£¡£¡£¡£¡£ÔÚÒ½ÎñÖ°Ô±×ßÀÈÓë¸÷²¡·¿ÅþÁ¬´¦ÉèÖÃÁ½µÀ»º³åÃÅ£¬£¬£¬£¬£¬Í¬Ê±ÉèÖÃË«ÃÅ»¥ËøÃܱÕת´ï´°£¬£¬£¬£¬£¬Îª»¼Õßת´ïʳÎï¡¢ÉúÑÄÎïÆ·¡¢Ò©ÎïµÈ£¬£¬£¬£¬£¬×ª´ï´°ÄÚÉèÖÃ×ÏÍâÏßÏû¶¾µÆ¡£¡£¡£¡£¡£¡£¡£
¢Ý ¼ì²éÊÒ
¹ú¼ÒÎÀ½¡Î¯½« CT ¼ì²éÄÉÈëµÚÎå°æ¡¶ÐÂÐ͹Ú×´²¡¶¾Ñ¬È¾µÄ·ÎÑ×ÕïÁƼƻ®¡·ÖУ¬£¬£¬£¬£¬Òò´ËÓÐÌõ¼þµÄ·¢ÈÈÃÅÕïÉèÖÃCT¡¢DRµÈÒ½¼¼¼ì²é¿Õ¼ä£¬£¬£¬£¬£¬ÔÚÉè¼ÆÊ±CT»ú·¿½á¹¹Ó¦Æ¾Ö¤¡°ÈýÇøÁ½Í¨µÀ¡±µÄÒªÇóÉèÖÃÎÛÈ¾Çø¡¢Ç±ÔÚÎÛÈ¾ÇøºÍÇå½àÇø£¬£¬£¬£¬£¬Çø·ÖÒ½»¤Í¨µÀÓ뻼ÕßͨµÀ£¬£¬£¬£¬£¬²Ù×÷¼ä×îºÃ¾ßÓиôÊÒ²Ù×÷¹¦Ð§£¬£¬£¬£¬£¬×èÖ¹²Ù×÷Ò½ÉúÓ뻼ÕßÖ±½Ó½Ó´¥£¬£¬£¬£¬£¬Ò½ÉúÔÚ²Ù×÷¼ä¿ÉÒÔÔ¶³Ì²Ù×÷¼ì²é´²£¬£¬£¬£¬£¬ÊµÏÖ¾«×¼»¯¶¨Î»£¬£¬£¬£¬£¬×èÖ¹Ò½»¼Ö®¼ä±¬·¢½»Ö¯Ñ¬È¾¡£¡£¡£¡£¡£¡£¡£
ÈôÊÇÊÇË¢ÐÂʹÓõķ¢ÈÈÃÅÕ£¬£¬£¬£¬Ó²¼þÌõ¼þÎÞ·¨Öª×ã¼ì²éÐèÇóʱ£¬£¬£¬£¬£¬ÐèÔÚÒ½ÔºÓ°ÏñÖÐÐÄÉèÖÃרÓõķ¢ÈÈÃÅÕïCT¼ì²é»ú·¿£¬£¬£¬£¬£¬¿ª·¢×¨ÃÅõè¾¶£¬£¬£¬£¬£¬ÕÅÌùÐÑÄ¿µÄʶ£¬£¬£¬£¬£¬ÓÉ»¤Ê¿µ¥È˵¥ÌËÅãͬ»¼Õß¿ìËÙÍê³É¼ì²é£¬£¬£¬£¬£¬ïÔÌÍ£Áôʱ¼ä¡£¡£¡£¡£¡£¡£¡£
·¢ÈÈÃÅÕïÐèÒªÉèÖÃÄ¥Á·ÊÒ£¬£¬£¬£¬£¬¶Ô»¼Õß¾ÙÐÐѪͨÀý¡¢C-·´Ó¦ÂѰ׵ÈѪҺ·½ÃæµÄÊÕÂÞºÍÄ¥Á·¡£¡£¡£¡£¡£¡£¡£
·¡ ·¢ÈÈÃÅÕïÖÎÀí
Ò» »¼Õß
·¢ÈÈÃÅÕﻼÕßÔÚ¾ÍÕïʱÐèҪʵÑéÈ«¹Ø±Õ¾ÍÕïÁ÷³ÌÖÎÀí£¬£¬£¬£¬£¬ÔÔòÉϹҺš¢¾ÍÕï¡¢ÊÕ·Ñ¡¢¼ì²é¡¢È¡Ò©µÈÕïÁÆÔ˶¯¶¼ÔÚ·¢ÈÈÃÅÕïÄÚÍê³É¡£¡£¡£¡£¡£¡£¡£ÈôÊÇˢеķ¢ÈÈÃÅÕïûÓÐÉèÖÃÄ¥Á·ÊÒ£¬£¬£¬£¬£¬±ê±¾ÊÕÂÞºóÓ¦Á¬Ã¦ÃÜ·â´¦Öóͷ££¬£¬£¬£¬£¬µÚһʱ¼äÔËËÍÖÁÄ¥Á·¿Æ¡£¡£¡£¡£¡£¡£¡£ÈôÊÇ»¼ÕßҪǰÍù·¢ÈÈÃÅÕïÒÔÍâµÄµØ·½¾ÙÐмì²é£¬£¬£¬£¬£¬Æ¾Ö¤ ¡°¾àÀë×î¶Ì¡¢½Ó´¥Ö°Ô±×îÉÙ¡¢×¨ÈË·À»¤Åãͬ¡±µÄÔÔò£¬£¬£¬£¬£¬¿ª·¢×¨ÓÃͨµÀ£¬£¬£¬£¬£¬²»ÓëͨË×»¼Õß³Ë×øÍ¬²¿µçÌÝ£¬£¬£¬£¬£¬¼ì²éÊÒµ¥ÈËʹÓ㬣¬£¬£¬£¬Ò½»¤Ö°Ô±×öºÃ·À»¤ÊÂÇ飬£¬£¬£¬£¬»¼ÕßËù´¦ÇéÐÎÑÏ¿áÆ¾Ö¤ÒªÇó¾ÙÐÐÏû¶¾¡£¡£¡£¡£¡£¡£¡£
¶þ Ò½»¤Ö°Ô±
Ò½»¤Ö°Ô±ÊÂÇéʱÐèҪƾ֤·À»¤ÒªÇóÅå´øÊÂÇéñ¡¢´©ÊÂÇé·þºÍÒ»´ÎÐÔ¸ôÀëÒ¡¢´÷Ò½Ó÷À»¤¿ÚÕÖ¡£¡£¡£¡£¡£¡£¡£µ±½Ó´¥»¼ÕßѪҺ¡¢ÌåÒºÒÔ¼°ÉøÍ¸Îïʱ£¬£¬£¬£¬£¬ÐèÒª´÷È齺ÊÖÌס£¡£¡£¡£¡£¡£¡£ÔÚÊÕÂÞ»¼Õ߱걾¡¢Æø¹Ü²å¹ÜµÈ²Ù×÷ʱ£¬£¬£¬£¬£¬ÓпÉÄܱ¬·¢ÆøÈܽº»òÒýÆðÉøÍ¸ÎïÅ罦£¬£¬£¬£¬£¬ÔÚÐèÒª¾ÙÐÐÉÏÊö·À»¤¸ôÀëÖ®Í⣬£¬£¬£¬£¬»¹ÐèÒªÅå´ø»¤Ä¿¾µÒÔ¼°·À»¤ÃæÆÁµÈ£¬£¬£¬£¬£¬ÐëҪʱ¿ÉÑ¡Óö¯Á¦ËÍ·ç¹ýÂËʽºôÎüÆ÷¡£¡£¡£¡£¡£¡£¡£ÔÚÊÕÖ§·¢ÈÈÃÅÕïÒÔ¼°¸ôÀ벡·¿Ê±£¬£¬£¬£¬£¬Ó¦¸Ãƾ֤ҪÇó´©ÍÑСÎÒ˽¼Ò·À»¤×°±¸£¬£¬£¬£¬£¬ÔÚ´©ÍÑ·À»¤·þʱ£¬£¬£¬£¬£¬Ó¦ÉèÓÐרÈ˼àÊÓ»òÏ໥¼àÊÓ£¬£¬£¬£¬£¬×èÖ¹½»Ö¯Ñ¬È¾¡£¡£¡£¡£¡£¡£¡£
Èý ÆäËû
·¢ÈÈÃÅÕïÇøÓòÄÚµÄÒ½ÁÆ×°±¸¡¢½çÃæ¡¢¿ÕÆø¼°¿Õµ÷͸·çϵͳµÄÏû¶¾ºÍÒ½ÁÆÀ¬»øµÄ´¦Öóͷ££¬£¬£¬£¬£¬Ó¦Çкϡ¶Ò½ÁÆ»ú¹¹Ïû¶¾ÊÖÒչ淶¡·µÈÏà¹Ø»®¶¨£¬£¬£¬£¬£¬²¢ÓÐÏìÓ¦µÄÊÂÇé¼Í¼¡£¡£¡£¡£¡£¡£¡£Ò½ÁÆÀ¬»øµÄ´¦Öóͷ£ÒªÇóΪ¡°ÈÕ²úÈÕÇå¡¢·ÖÀàÍøÂç¡¢×¨Çø´æ·Å¡¢ÃܱÕÔËËÍ¡¢ÎÞº¦»¯´¦Öóͷ£¡±[1]£¬£¬£¬£¬£¬Æ¾Ö¤¹ú¼Ò»®¶¨ºÍÒ½Ôº¸Ð¿ØÒªÇ󣬣¬£¬£¬£¬·¢ÈÈÃÅÕïÎÛÈ¾ÇøºÍDZÔÚÎÛÈ¾Çø±¬·¢µÄÒ½ÁÆ·ÏÎïºÍÉúÑÄÀ¬»ø¾ùƾ֤ҽÁÆ·ÏÎï¾ÙÐд¦Öóͷ££¬£¬£¬£¬£¬ÊµÊ±ÕûÀí²¢×öºÃ¼Í¼¡£¡£¡£¡£¡£¡£¡£
Èþ ·¢ÈÈÃÅÕï×°±¸
Ò» ͸·çÅÅ·ç¼°¿Õµ÷ÉèÊ©
·¢ÈÈÃÅÕïµÄ¿Õµ÷ϵͳӦµ¥¶ÀÉèÖ㬣¬£¬£¬£¬Ö÷Òª¹¦Ð§·¿¼äÓ¦¸ÃÄܹ»Í¸·ç£¬£¬£¬£¬£¬¼á³ÖÊÒÄÚ¿ÕÆøÁ÷ͨ£¬£¬£¬£¬£¬Í¬Ê±Ó¦¾ß±¸»úе͸·çµÄÄÜÁ¦¡£¡£¡£¡£¡£¡£¡£Í¸·ç²»Á¼µÄ·¿¼ä£¬£¬£¬£¬£¬¿É×°Öòî±ðÆ«ÏòµÄÅŵçÉÈ»òÆäËû»úеÅÅ·çÉèÊ©£¬£¬£¬£¬£¬´Ó²î±ðÆ«Ïò¾ÙÐÐÅŷ磬£¬£¬£¬£¬ÅÅ·ç×é֯Ӧƾ֤´ÓÇå½àÇø¡úDZÔÚÎÛÈ¾Çø¡úÎÛÈ¾ÇøµÄÁ÷Ïò¾ÙÐÐ×éÖ¯¡£¡£¡£¡£¡£¡£¡£
¶þ Ïû¶¾ÉèÊ©
·¢ÈÈÃÅÕïÄڵĹ¦Ð§¿Õ¼äÓ¦ÉèÖÃÏ´ÊÖÉèÊ©£¬£¬£¬£¬£¬Ê¹Ó÷ÇÊÖ´¥Ê½µÄË®ÁúÍ·¡£¡£¡£¡£¡£¡£¡£¶Ô¹¦Ð§ÇøÓòÄÚµÄÒ½ÁÆ×°±¸¡¢ÎïÌåÍâò¡¢µØÃæµÈ²¿Î»¾ÙÐÐÏû¶¾£¬£¬£¬£¬£¬ÉèÖÃ¿ÕÆø»òÆøÈܽºÏû¶¾ÉèÊ©£¬£¬£¬£¬£¬ÀýÈçÈ«×Ô¶¯Îí»¯¿ÕÆøÏû¶¾»ú¡¢¹ýÑõ»¯ÇâÏû¶¾»ú¡¢×ÏÍâÏߵƣ¨³µ£©¡¢Ò½ÓÃ¿ÕÆøÏû¶¾»úµÈ¡£¡£¡£¡£¡£¡£¡£
Èý ÐÅÏ¢»¯×°±¸
·¢ÈÈÃÅÕïµÄ½¨ÉèÀë²»¿ªÏÖ´ú»¯µÄÊÖÒÕÊֶΣ¬£¬£¬£¬£¬ÍŽá´óÊý¾Ý¡¢»¥ÁªÍø¡¢ÎïÁªÍøµÈÏÖ´úÊÖÒÕ£¬£¬£¬£¬£¬Ìá¸ßÒ½»¤Ö°Ô±µÄÊÂÇéЧÂÊ£¬£¬£¬£¬£¬ïÔ̽»Ö¯Ñ¬È¾¡£¡£¡£¡£¡£¡£¡£·¢ÈÈÃÅÕïµÄ½¨ÉèÔÚ×ۺϲ¼Ïß½×¶ÎÐèÒªÉèÖÃÓëÒ½ÔºHISϽµµÍªÍ¨µÄÄÚÍâÍøÏµÍ³¡¢µç×Ó²¡Àúϵͳ¡¢×Ô¶¯¹ÒºÅÊÕ·Ñϵͳ¡¢¿ÉÊÓ¶Ô½²ÏµÍ³µÈ¡£¡£¡£¡£¡£¡£¡£Í¬Ê±Ë¼Á¿Ê¹ÓÃÔ¶³ÌÒ½ÁÆÊÖÒÕ£¬£¬£¬£¬£¬ÈçÔ¶³ÌÕï¶Ï¡¢Ô¶³ÌÊä×¢¡¢ºôÎü»úÔ¶³ÌÁª»úϵͳµÈ£¬£¬£¬£¬£¬ïÔÌÒ½»¼Ö®¼äµÄѬȾ¡£¡£¡£¡£¡£¡£¡£
ËÄ ÃŽûϵͳ
·¢ÈÈÃÅÕïÐèÒªÉèÖÃÊÕÖ§¿Ú¹Ü¿ØÏµÍ³£¬£¬£¬£¬£¬¶ÔÒ½»¼Í¨µÀ¡¢Çå½àÇøÓëÎÛÈ¾Çø¾ÙÐиôÀëÖÎÀí£¬£¬£¬£¬£¬Ê¹Ò½»¤Ö°Ô±Í¨µÀºÍ»¼ÕßͨµÀÍÑÀ룬£¬£¬£¬£¬×èÖ¹½»Ö¯Ñ¬È¾¡£¡£¡£¡£¡£¡£¡£ÔÚ×ۺϲ¼Ïßʱ½«ÃŽûϵͳÓëÏû·À±¨¾¯ÏµÍ³ÉèÖÃΪÁª¶¯£¬£¬£¬£¬£¬±¬·¢»ðÔֵȽôÆÈÇéÐÎʱÄܹ»¿ìËÙɨ³ýÃÅÎüÐж¯£¬£¬£¬£¬£¬Ê¹Ö°Ô±Äܹ»Ñ¸ËÙÊèÉ¢£¬£¬£¬£¬£¬ÇкÏÏû·À¹æ·¶µÄÒªÇ󡣡£¡£¡£¡£¡£¡£
ËÁ ÔöǿѬȾ²¡Ó¦¼±´¦Öóͷ£ÄÜÁ¦
·¢ÈÈÃÅÕï×ÔÁ¦ÉèÖ㬣¬£¬£¬£¬ÔÚÍýÏë½á¹¹Ê±×îºÃÓë¼±ÕïµÈ¹¦Ð§ÁÚ½ü£¬£¬£¬£¬£¬ÔÚÒßÇ鱬·¢Ê±£¬£¬£¬£¬£¬Óë¼±ÕĥÁ·¡¢¼ì²é¡¢ÊÖÊõ¡¢ÖØÖ¢¼à»¤µÈ¿ÆÊÒ¾ÙÐÐÁª¶¯£¬£¬£¬£¬£¬³ä·ÖʹÓÃÒ½ÁÆ×ÊÔ´£¬£¬£¬£¬£¬ÊµÊ±Ó¦¶ÔÍ»·¢Ò½ÁÆÊÂÎñ£¬£¬£¬£¬£¬×÷Ϊ¡°Æ½¼±ÍÅ½á¡±ÇøÓò¼ç¸ºÒßÇéÓ¦ÇÀ¾ÈÖÎʹÃü¡£¡£¡£¡£¡£¡£¡£Òò´ËÏÖ´úÒ½Ôº·¢ÈÈÃÅÕィÉèÓ¦×¢ÖØÆ½¼±ÍŽáÕ½ÂÔ£¬£¬£¬£¬£¬Æ½Ê±Ó¦³ä·Ö×öºÃÓ¦¼±±¬·¢Ê±µÄ×¼±¸£¬£¬£¬£¬£¬ÔöǿѬȾ²¡Ó¦¼±´¦Öóͷ£ÄÜÁ¦¡£¡£¡£¡£¡£¡£¡£