ÉîÛÚÊÐÑÛ¿ÆÒ½ÔºÎ»ÓÚ¸£ÌïÖÐÐÄÇø£¬£¬£¬£¬£¬£¬Õ¼µØÃæ»ýΪ17605.9ƽ·½Ã×£¬£¬£¬£¬£¬£¬¶þÆÚ¹¤³ÌÀ©½¨Ò»¶°×ÛºÏÂ¥£¬£¬£¬£¬£¬£¬ÔöÌí´²Î»100ÕÅ£¬£¬£¬£¬£¬£¬ÑÛ¿ÆÒ½Ôº×Ü´²Î»µÖ´ï300´²¡£¡£¡£¡£¡£¡£ÏÖÔÚ£¬£¬£¬£¬£¬£¬¶þÆÚ¹¤³ÌÕý´¦Óڼƻ®Éè¼Æ½×¶Î¡£¡£¡£¡£¡£¡£

ΪÁËÈÃÒ½»¤Ö°Ô±Äܹ»¸ü¸ßЧµØ¾ÙÐоÈÖΣ¬£¬£¬£¬£¬£¬ÑۿƲ¡ÈËÄܹ»¸ü¿ìËٵػָ´×ÆË¸£¬£¬£¬£¬£¬£¬Å㻤¾ìÊôÄܹ»¸üÊæÐÄµØÆÚ´ýʱ¹â£¬£¬£¬£¬£¬£¬ºóÇÚÖ°Ô±Äܹ»¸üÇáËɵؿªÕ¹ÊÂÇ飬£¬£¬£¬£¬£¬ÉîÛÚÊÐÑÛ¿ÆÒ½ÔºÃæÁÙÖØ´óµÄ½¨ÉèÏÞÖÆÌõ¼þ£¬£¬£¬£¬£¬£¬½ÓÄÉÁËÁù´óÉè¼ÆÀíÄî¡£¡£¡£¡£¡£¡£
±¦µØ±¦Ó㬣¬£¬£¬£¬£¬±ÊÖ±Éú³¤µÄÒ½Ôº
ÏîÄ¿ÓÃְλÓÚ¶¼»á½¹µãÇø£¬£¬£¬£¬£¬£¬ÔÚÏÁյؿéÖоÙÐиßÈÝ»ý¡¢¸ßÃܶÈÑÛ¿ÆÒ½ÔºµÄ¸ÄÀ©½¨£¬£¬£¬£¬£¬£¬Í¨¹ý±Êֱά¶ÈÉϵÄÍØÕ¹À´½â¾öÃÅÕï¡¢Ò½¼¼¡¢×¡Ôº¡¢°ì¹«¼°¿ÆÑпռäµÈ¹¦Ð§ÏµÍ³µÄÍêÕûÐÔ¡£¡£¡£¡£¡£¡£

½üµØÃæ½ÓÄÉÇãÔþ¡¢ÐüÌôµÈÊÖ·¨£¬£¬£¬£¬£¬£¬Êͷųöµ×²ã¿Õ¼ä¡£¡£¡£¡£¡£¡£Í¨¹ýÍĘ̈»¨Ô°£¬£¬£¬£¬£¬£¬±ÊÖ±ÂÌ»¯£¬£¬£¬£¬£¬£¬ÔÚÐÞ½¨Éϲ¿´´Á¢¶àÌõÀíÌåÑé×ÔÈ»µÄ³¡ºÏ£¬£¬£¬£¬£¬£¬Í¬Ê±ÓªÔìÒ»¸ö¡°»áºôÎüµÄÁ¢Ã桱£¬£¬£¬£¬£¬£¬Ë³Ó¦ÁëÄϵØÇøÏÄÈÕÑ×ÈȵÄÌìÆøÌØÕ÷¡£¡£¡£¡£¡£¡£Ì§Éý¡°¶¼»áÖ®ÑÛ¡±£¬£¬£¬£¬£¬£¬´ÓÐÞ½¨ÄÚ²¿Ô¶Ì÷¶¼»á¿Õ¼ä£¬£¬£¬£¬£¬£¬ÒÔС¼û´ó£¬£¬£¬£¬£¬£¬ÌáÉý¿Õ¼äÃûÌᣡ£¡£¡£¡£¡£

±ÊÖ±¹¦Ð§¹¹¼ÜÆÊÎö
ͳ³ïÀ©½¨£¬£¬£¬£¬£¬£¬ÐÂÀÏÈںϵÄÒ½Ôº
ÖÆ¶©ºÏÀíµÄÐÂÀÏÔºÇøÌÚŲ¼Æ»®£¬£¬£¬£¬£¬£¬ÓªÔ츴ºÏ¹¦Ð§¿Õ¼ä£¬£¬£¬£¬£¬£¬½¨Éè¸ßЧÁ÷Ïßϵͳ£¬£¬£¬£¬£¬£¬ÏûÈÚÐÂÀÏÔºÇø¼°Ò½ÔºÓë¶¼»á½çÏß¡£¡£¡£¡£¡£¡£
ÔÚˮƽÁ÷ÏßÉÏ£º
ȹ·¿½ÓÄÉ¡°Ö÷Ò½ÁƽÖ+Ò½ÁÆÄ£¿£¿£¿£¿£¿é¡±µÄÐÎʽ£¬£¬£¬£¬£¬£¬½«ÐÂÀÏÔºÇøµÄ¹«¹²¿Õ¼ä´®Áª£¬£¬£¬£¬£¬£¬ÑÜÉú³ö½»Í¨¼¯É¢¡¢ÂÌ»¯ÐÝí¬¡¢¶¼»áչʾµÈ¶àÔªµÄ¸´ºÏ¹¦Ð§¿Õ¼ä¡£¡£¡£¡£¡£¡£

Ö÷Ò½ÁÆÍâ½ÖЧ¹û
ÔÚÊúÏòÁ÷ÏßÉÏ£º
ÊúÏò½»Í¨³ÊÁ¢Ìåµþ¼Ó°²ÅÅ£¬£¬£¬£¬£¬£¬·Ö¹¤Ã÷È·£¬£¬£¬£¬£¬£¬¾ßÓÐÓÅÒìµÄµ¼ÏòÐԺ͸ßЧµÄתÔËÄÜ¡£¡£¡£¡£¡£¡£

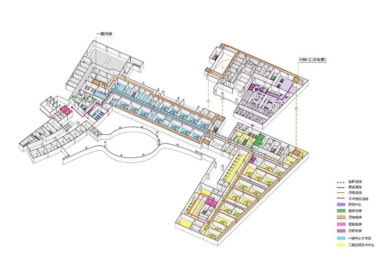
±ÊÖ±½»Í¨ÏµÍ³
ÔÚÐÂÄÚÐÐÊõÖÐÐĵÄÉèÖÃÉÏ£º
¶þÆÚÈÕ¼äÊÖÊõÖÐÐÄÓëÒ»ÆÚÊÖÊõÖÐÐÄͬÔÚËIJ㣬£¬£¬£¬£¬£¬Çå½à×ßµÀÏàͨ¡£¡£¡£¡£¡£¡£ÎÛÎïͨ¹ý±ÊÖ±µçÌÝÓëÎÛÎïͨµÀÔÚÎå²ãÏàÁ¬£¬£¬£¬£¬£¬£¬²¢Ë͵½Ïû¶¾ÖÐÐÄ¡£¡£¡£¡£¡£¡£¾ÓÉÏû¶¾ºó£¬£¬£¬£¬£¬£¬Çå½àÎïÆ·Í¨¹ýרÓõçÌÝÖ±½Ó½øÈëÊÖÊõÇøÓò£¬£¬£¬£¬£¬£¬µÖ´ï×î¸ßЧÇå¾²µÄÁ÷³Ì¡£¡£¡£¡£¡£¡£

ÊÖÊõÖÐÐÄ£¨Èռ䣩
ÔÚÑÛ¿µ½¡½ÌÓýÌåÑé¹ÝµÄ½¨ÉèÉÏ£º
ÔÚ¡°È¥Ò½Ôº»¯¡±Ç÷ÊÆÅä¾°Ï£¬£¬£¬£¬£¬£¬ÊÐÐÞ½¨¹¤ÎñÊðÔÚ¡°¶¼»áÖ®ÑÛ¡±¶ÔӦ¥²ã£¬£¬£¬£¬£¬£¬ÍŽáºòÕï¡¢½»Í¨¿Õ¼äÉèÖÃÑÛ¿ÆÕ¹Ê¾ÌåÑéÇø¡¢ÑÛ¿µ½¡½ÌÓýÐû½ÌÇø¡¢¶¼»á¹Û¾°Æ½Ì¨µÈ£¬£¬£¬£¬£¬£¬´òÔì³ÉÑÛ²¡ÖÎÁÆÓëÑÛ¿µ½¡¿ÆÆÕ½ÌÓýÏàÍŽáµÄÑۿƲ©Îï¹Ý£¬£¬£¬£¬£¬£¬½«ÑÛ²¡¿µ¸´ÓëÇéÐÎÖÎÓúÏàÈںϡ£¡£¡£¡£¡£¡£ÖÃÉíÆäÖУ¬£¬£¬£¬£¬£¬ÈÃÈËÇ××ÔÌåÑéµ½¡°ÓûÇîǧÀïÄ¿£¬£¬£¬£¬£¬£¬¸üÉÏÒ»²ãÂ¥¡±µÄ¿Õ¼äÃûÌÃÓëÒâ¾³¡£¡£¡£¡£¡£¡£

¶¼»áÖ®ÑÛ
ÑÛ¿µ½¡½ÌÓýÌåÑé¹Ý
ÔÚÕչ˻¤Ê¿µ¥Î»µÄÉèÖÃÉÏ£º
µ¥²ãµ¥Õչ˻¤Ê¿µ¥Î»£¬£¬£¬£¬£¬£¬²¡ÇøÓëºóÇøÏà¶Ô×ÔÁ¦¡£¡£¡£¡£¡£¡£Ì½ÊÓ¡¢²¡»¼¡¢Ò½»¤ºóÇÚ¡¢ÎÛÌݸ÷×Ô×ÔÁ¦¡£¡£¡£¡£¡£¡£

Õչ˻¤Ê¿µ¥Î»ÊÒÄÚЧ¹û
ÈÚÈë¶¼»á¹«Ô°ÀïµÄÒ½Ôº
¶¼»á¿Õ¼ä³ä·ÖÍŽáÈ˵ÄÉúÑÄ·½·¨¾ÙÐÐÉè¼Æ£¬£¬£¬£¬£¬£¬·ºÆð³öÈË¡¢×ÔÈ»¡¢¶¼»áе÷¹²ÉúµÄÓÅÃÀÉúÑÄͼ¾°¡£¡£¡£¡£¡£¡£

¶¼»á»¨Ô°¾°Ô¢Ä¿·¨Í¼
ÄÉÈëÓõØÎ÷²àµÄ¶¼»á½ÖÐū԰£¬£¬£¬£¬£¬£¬ÕûÌå˼Á¿¾°¹ÛÉè¼Æ¡£¡£¡£¡£¡£¡£

½ÖÐū԰
½«Êײ㻨԰´òÔì³ÉÉøÍ¸¶¼»á¾°¹Û¡¢¿ª·Å½ÖÇøÊ½µÄ¶¼»á»¨Ô°¡£¡£¡£¡£¡£¡£

½ÖÐū԰
½«¿ÕÖл¨Ô°´òÔì³É´ÓÐÞ½¨ÄÚ²¿Ô¶Ì÷¶¼»áµÄ¹Û¾°Æ½Ì¨¡£¡£¡£¡£¡£¡£

¿ÕÖл¨Ô°£¨¶¼»áÖ®ÑÛÊÒÍ⣩
´òÔìÊײ㹫԰ºÍ¿ÕÖл¨Ô°ÏàºôÓ¦µÄÁ¢Ìå¾°¹Ûϵͳ£¬£¬£¬£¬£¬£¬ÓªÔìݺÌäÑàÓïÖеÄÇóÒ½ÎÊÕ£¬£¬£¬£¬£¬Ê÷Ó°ÆÅæ¶Öеķ¢Ã÷Ö®Âᣡ£¡£¡£¡£¡£
Õë¶ÔÍ´µã£¬£¬£¬£¬£¬£¬½»Í¨Ë³³©µÄÒ½Ôº
Æ¬Çø¶¼»á½»Í¨¼°Ò½Ôº¾ÍÕï³µÐеĸººÉ½Ï´ó£¬£¬£¬£¬£¬£¬³¤Ê±¼äµÄÅÅ¶ÓÆÚ´ý´ó´ó½µµÍÁ˾ÍÒ½ÌåÑé¸ÐÓëЧÂÊ£¬£¬£¬£¬£¬£¬³ÉΪҽԺÔËÓªµÄÖ÷Ҫʹµã¡£¡£¡£¡£¡£¡£

×ÜÆ½ÃæÍ¼
ÍŽáÏÖ×´¼°Î´À´µÄ³µÐÐÐèÇ󣬣¬£¬£¬£¬£¬Éè¼Æµ¥Î»ÍýÏëÁ˵ØÉϵØÏ·ÖÁ÷Êèµ¼µÄ»·×´½»Í¨ÄÚÍøºÍË«½ÖʽÂä¿ÍÇø¡£¡£¡£¡£¡£¡£

»·×´½»Í¨ÄÚÍø
¼ÈʵÏÖÁËÈ˳µ·ÖÁ÷£¬£¬£¬£¬£¬£¬ÓÖ½â¾öÁ˼´Í£¼´×ߺÍÖ±´ïÈë¿âµÄ³µÐзÖÁ÷ÐèÇ󣬣¬£¬£¬£¬£¬Ò²Öª×ãÁËͨ³£ºÍá¯ÁëʱÆÚµÄ³µÐÐÊÕÖ§¡£¡£¡£¡£¡£¡£
ϸÄåÁ¢Ã棬£¬£¬£¬£¬£¬Ä£Êý»¯µÄÒ½Ôº
Á¢ÃæÉè¼ÆÌåÏÖ¡°¾«ÓÚÐÄ¡¢¼òÓÚÐΡ±µÄÉè¼ÆÕÜѧ£¬£¬£¬£¬£¬£¬ÒÔÄ£Êý»¯Éè¼ÆÎªÔÀí£¬£¬£¬£¬£¬£¬Ã¿¸öµ¥Î»¼äÀο¿²£Á§Í¬Í¸·çÏäÐéʵ´í룬£¬£¬£¬£¬£¬Òþ²Ø¿ª´°ÓÖ¾ßÓÐÕÚÑôЧ¹û£»£»£»£»£»£»£»£»ÊÓ¾õÉÏÓÌÈçһ˫˫ÇåÁÁÃ÷ÁÁµÄÑÛ¾¦£¬£¬£¬£¬£¬£¬ä¯ÀÀÕâ×ù¶¼»áµÄÍòǧ¾«²Ê¡£¡£¡£¡£¡£¡£

ΪӦ¶ÔÉîÛÚÑÇÈÈ´øÌìÆø£¬£¬£¬£¬£¬£¬Í¨¹ý¼Ó´óĻǽÉî¶ÈÐν¨ÉèÌåµÄÕÚÑôϵͳ£¬£¬£¬£¬£¬£¬°ü¹ÜÊÒÄÚ×ÔÈ»²É¹â²¢ïÔÌÌ«Ñô·øÉ䣬£¬£¬£¬£¬£¬ÊµÏÖ¸ßЧµÄ½ÚÄÜ¿ØÖÆ¡£¡£¡£¡£¡£¡£

͸·çÏ䳯Äϱ±Æ«ÏòÉèÖÃÇãÐ±Ãæ£¬£¬£¬£¬£¬£¬ÔÚ×î´ó»¯ÕÚÑô½ÚÄܵÄͬʱÀ©´óÊÓÏßµÄ̹µ´¶È¡£¡£¡£¡£¡£¡£
ºÏÀíÌÚŲ£¬£¬£¬£¬£¬£¬ÔËÓªÁ¬¹áµÄÒ½Ôº
±Ü¿ªÀÏÔºÇøµØÏÂÊÒÇøÓò¼°ÍËÈûù¿ÓÖ§»¤¼ä¾à£¬£¬£¬£¬£¬£¬¾«×¼È·¶¨¿É½¨ÉèÇøÓò½çÏߣ¬£¬£¬£¬£¬£¬½¨ÉèÔÝʱΧµ²£¬£¬£¬£¬£¬£¬Ïà¶Ô¸ôÀëÔËÓªÓëÊ©¹¤ÇøÓò£¬£¬£¬£¬£¬£¬²¢ÔÚÆä¼ä½¨ÉèÏà¶Ô±ã½Ý¼°Çå¾²µÄÔÝʱ¾ÍҽͨµÀ£¬£¬£¬£¬£¬£¬ÅþÁ¬ÀÏÔºÇø¡£¡£¡£¡£¡£¡£

½¹µãÒ½¼¼£¨ÈçÖÐÐũӦ¡¢²¡Àí¿Æ¡¢Ä¥Á·¿Æ£©ºÍ°ü¹Ü¹¦Ð§£¨³ø·¿¡¢Ö°¹¤²ÍÌü£©¾ùÔÚÐÂÂ¥ÄÚÉèÖ㬣¬£¬£¬£¬£¬Ê¹µÃÀÏ¥ˢÐÂʱ£¬£¬£¬£¬£¬£¬ÐÂÂ¥Äܹ»Õý³£ÔËÐС£¡£¡£¡£¡£¡£
´ýÐÂÂ¥Í깤ºó£¬£¬£¬£¬£¬£¬ÀÏ¥ȹ·¿½«¾ÙÐдÓÉÏÖÁϵÄˢУºÊ×ÏÈ£¬£¬£¬£¬£¬£¬ÔÚÎåÂ¥¸Ä½¨ÐµÄÅäÒºÖÐÐÄÒ©·¿£¬£¬£¬£¬£¬£¬°ü¹ÜÐÂÀÏסԺµÄÔËÐУ»£»£»£»£»£»£»£»Æä´Î£¬£¬£¬£¬£¬£¬À©´óËÄÂ¥ÊÖÊõÖÐÐÄ£¬£¬£¬£¬£¬£¬ÔöÌí2̨ÊÖÊõÊÒ£»£»£»£»£»£»£»£»½Ó×Å£¬£¬£¬£¬£¬£¬¶þÈýÂ¥¾ÙÐÐÃÅÕï¿ÆÊÒµ÷½â£¬£¬£¬£¬£¬£¬Ë¢ÐÂʱ´ú´Ë²¿·ÖÃÅÕïÁ¿¿ÉºÏ²¢µ½ÐÂÔºÇøÃÅÕïÖУ¬£¬£¬£¬£¬£¬ÔÝʱ¹²Ó㻣»£»£»£»£»£»£»×îºó£¬£¬£¬£¬£¬£¬¾ÙÐÐһ¥ˢУ¬£¬£¬£¬£¬£¬Ôö²¹¼±ÕѬȾ¿Æ¹¦Ð§£¬£¬£¬£¬£¬£¬¶Ô·ÅÉä¿Æ¾ÙÐÐÀ©´óµ÷½â¡£¡£¡£¡£¡£¡£
½¨³ÉºóµÄÉîÛÚÑÛ¿ÆÒ½Ôº½«ÎªÀÏÔºÇø´øÀ´ÐÂÉúµÄÒò×Ó£¬£¬£¬£¬£¬£¬Îª¹«ÖÚ´øÀ´Ò»¸ö¿Æ¼¼¡¢ÂÌÉ«¡¢Öǻ۵ĸßˮƽÑÛ¿ÆÒ½ÔºÒ²Îª¶¼»áÌṩһ¸ö¿ÉÒÔÐÝí¬¡¢Ì½Ë÷¡¢·¢Ã÷µÄ÷ÈÁ¦¹«Ô°¡£¡£¡£¡£¡£¡£